HOME下野市薬師寺  新築一戸建住宅 1階 2LDK 3648万円 建物面積95.23m2 土地面積234.12m2 2LDK 2025/05

販売物件情報


  • 販売物件リストを見る
  • 物件情報を印刷する
  • プリンタの設定で「背景を印刷する」と設定しないと「背景画像」が印刷されないことがあります。印刷の際には、必ず「背景を印刷する」設定にしてください。


下野市薬師寺 新築一戸建住宅

物件情報

価格 3,648万円

この物件のお支払い例

頭金0円/ボーナス払い0円

3,648

96,318

セールスポイント

■■■こちらの物件のPOINTは?■■■◆全19区画分譲地内!ライフスタイルに合わせて3LDKにも変更可能な平屋住宅♪◆収納力・家事動線など、主婦目線で設計した間取となっておりますので毎日の家事や育児の負担を軽減できます♪◆タッチレス水栓、エコキュート、エアコン(2台)等標準装備♪◆料理・洗濯・片付けなど並行して家事を進められる回遊動線で効率もアップ♪◆リビングから直接出入りできるウッドデッキ付♪



所在地・交通

所在地 下野市薬師寺 
最寄駅 JR東北本線 自治医大駅 徒歩分数・距離 13分(約1040m)
最寄バス停 徒歩分数・距離
小学校校区 祇園小 中学校校区 南河内第二中

※学校区は住所から自動判定したものであり、保証できる情報ではございません。
正確な学校区はお問い合わせ下さい。

「人型アイコン」を地図上にドラッグすることで『Google Street View』に切り替わります。

※住所から自動で地図上にピンが表示されておりますので、実際の場所とは異なる場合があります。
場所についてはお問い合わせ下さい。

物件概要

種目 新築一戸建住宅
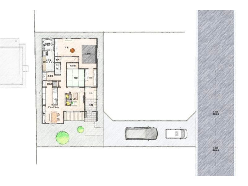
間取り 2LDK 間取り内訳 和×1、洋×1
土地面積 234.12㎡ 私道面積
建物面積 95.23㎡ 建物構造規模 木造 1階建
築年月(竣工月) 2025年(令和7年)05月 駐車場 有 0円
駐車場備考
建ぺい率/容積率 60%/200% 都市計画 市街化調整区域
接道状況 東6m    一方道路
地目 宅地
土地権利 所有権 地勢 平坦
用途地域
現況 完成 取引態様 媒介

取引条件等

引渡し 期日指定 2025年10月上旬
引渡し条件

その他

備考 ◆周辺環境◆・セブンイレブン…約800m・かましん…約800m・カワチ薬品…約600m・第二薬師寺幼稚園…約1090m・自治医科大学附属病院…約500m・祇園原公園…約800m
設備 温水洗浄便座、追焚機能、浴室乾燥機、システムキッチン、カウンターキッチン、IHクッキングヒーター、浄水器、食器洗浄乾燥機、ウォークインクローゼット、電気、上水道、下水道、複層ガラス、エアコン、モニタ付インターホン、庭、駐車場2台分
特徴 日当り良好、バリアフリー、オール電化、24時間換気システム
諸条件・相談
情報登録日 2026年4月26日 情報更新予定日 2026年5月11日
物件番号 0-2000175380
この物件を見た人の多くは下記の物件も見ています!
下野市小金井3丁目  [3,180万円] [5LDK]
下野市薬師寺  [4,632万円] [3LDK]
下野市薬師寺  [5,298万円] [3LDK]
下野市薬師寺  [4,018万円] [3LDK]

1,257

売主様のご要望で一般には公開していない「非公開物件」を会員様だけに限定公開しています。

無料メンバー登録はこちら

ビューハウス店舗だと、ホームページで公開できない物件も6,000件以上の中からご紹介致します!

宇都宮東店へのご来店予約はコチラ!TEL 0120-770-557 受付時間 9時~19時(水曜日定休)

Web予約限定特典付き!!宇都宮東店に予約する(QUOカード3,000円分プレゼント!!)

小山店へのご来店予約はコチラ!TEL 0120-913-157 受付時間 9時~19時(水曜日定休)

Web予約限定特典付き!!小山店に予約する(QUOカード3,000円分プレゼント!!)